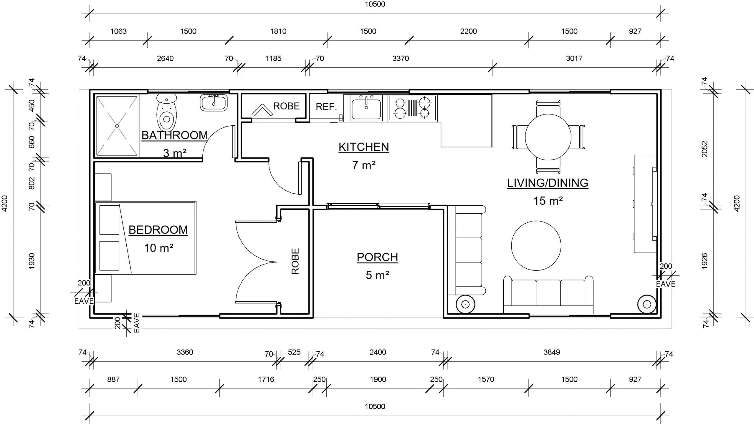
One-Bedroom-plan-1